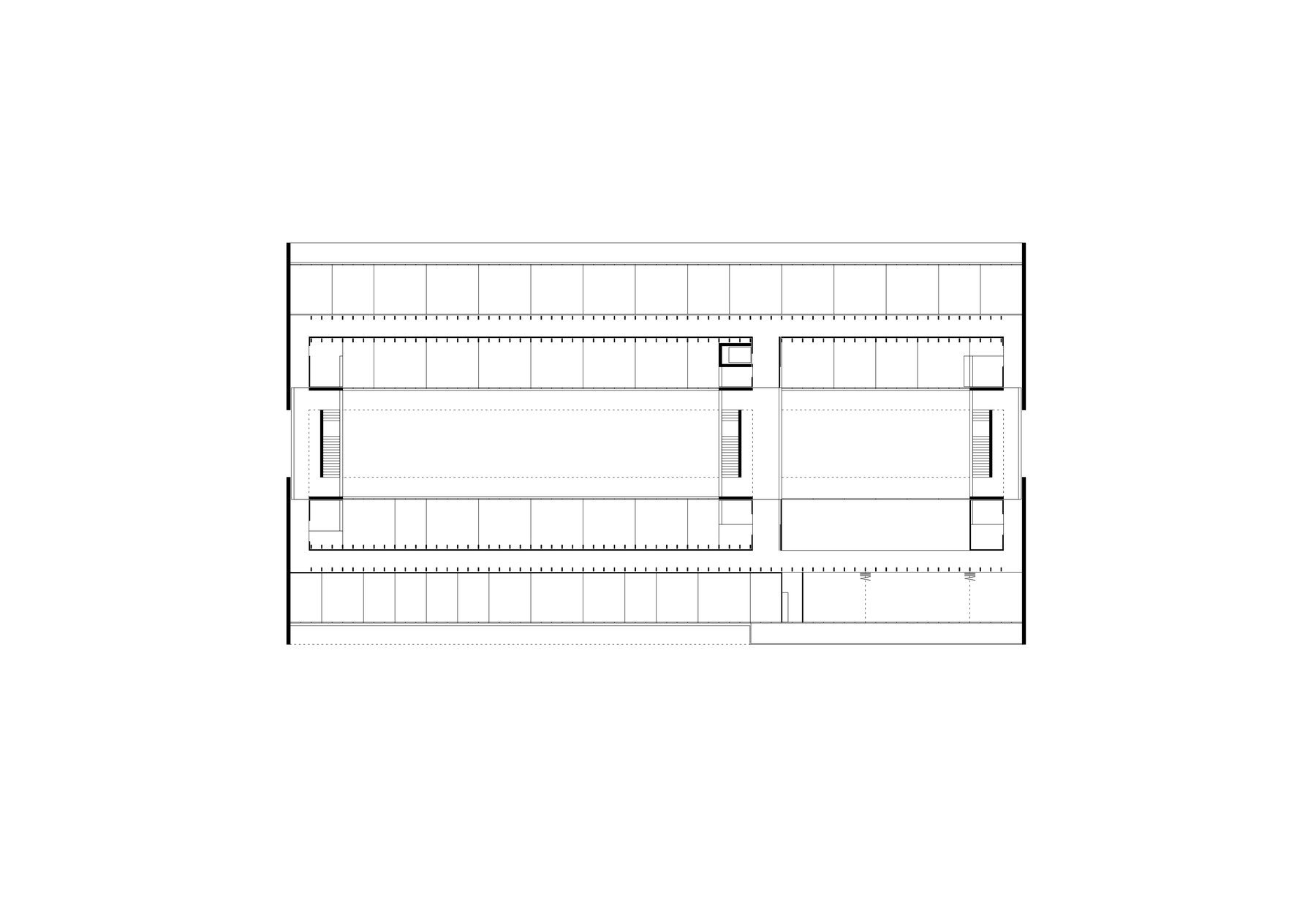
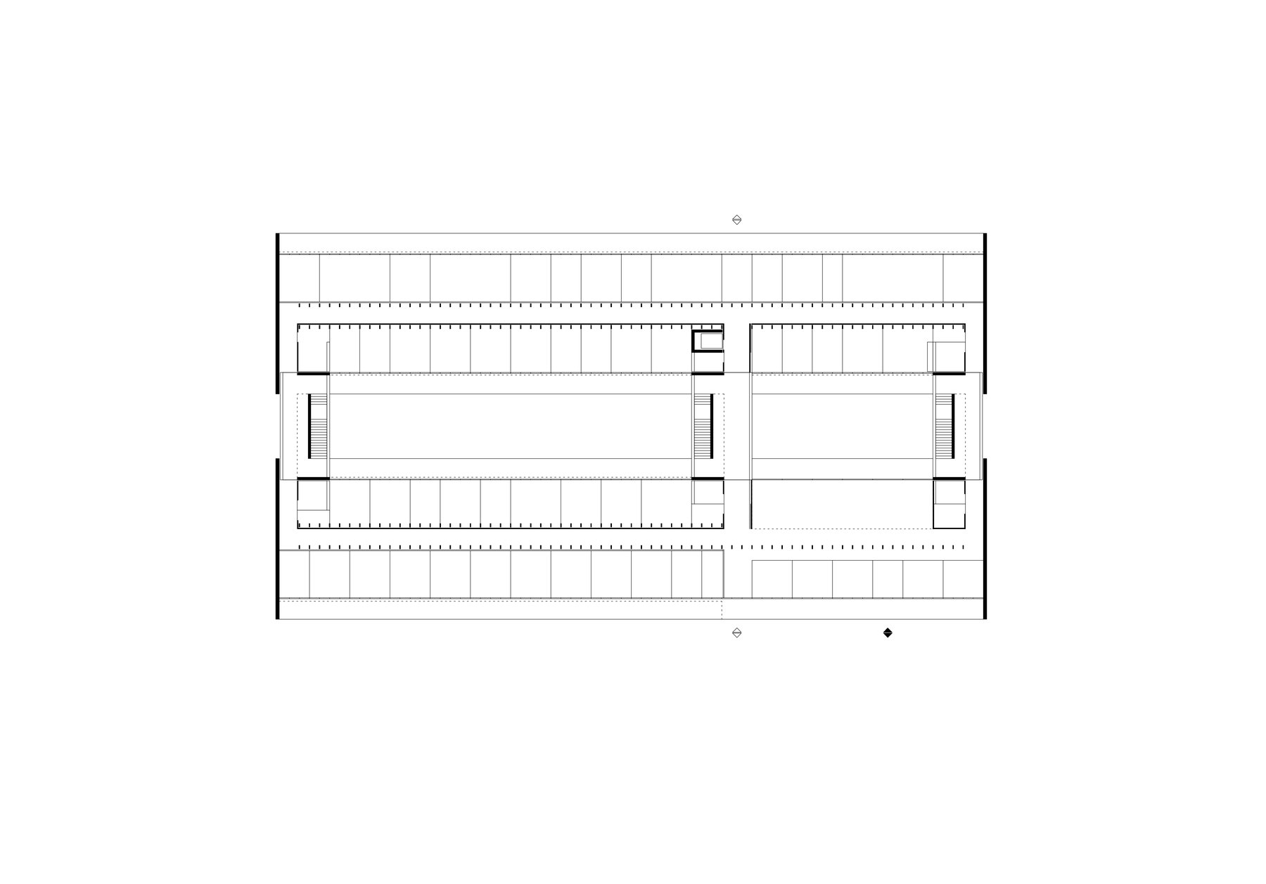
FAGAP | Finanzamt Garmisch-Partenkirchen

Verwaltungsbau als Vollholzkonstruktion für 140 Mitarbeiter

FAGAP | Finanzamt Garmisch-Partenkirchen
Verwaltungsbau als Vollholzkonstruktion für 140 Mitarbeiter

 

Wettbewerb 2007, 1. Preis | Planung und Bau 2008 – 2011 | Bauherr Freistaat Bayern, v.d. Staatliches Bauamt Weilheim | BGF 5.900 qm | Team Reinhard Bauer, Anne Wernicke, Christian Hartranft, Sebastian Frank, Objektüberwachung Robert Scheck | Fotografie Michael Heinrich, Jens Weber

 

BDA Preis Bayern 2013 | Deutscher Holzbaupreis 2013 | Rosenheimer Holzbaupreis 2012 | 3. Wessobrunner Architekturpreis 2012 I Oberösterreichischer Holzbaupreis 2012 | BNB Silber